A few relevant details, to help you get to know your apartment at Ri Elegance
Structure: RCC Frame Structure with Solid Concrete block walls
Masonry: Solid block walls for both internal 4” and external 6” walls
Plastering: Smooth surface with lime rendered for interior walls and sponge finish for exterior walls
Paints: Interior Walls painted with plastic emulsion from Asian Paints or equivalent with Putty finish and exterior walls with Apex(Asian Paints ) or equivalent weather proof Exterior Emulsion.
Flooring / COMMON AREA: Common Areas & Staircase - Granite Flooring.
Flooring / APARTMENTS: 2x2 Vitrified Tiles for entire apartment
Anti Skid/rustic tiles for the balconies.
Kitchen:Vitrified flooring and glazed ceramic tiles in walls upto 2'0'' height above 30mm thick Granite counter in the kitchen with SS sink.
Bathrooms : Anti-skid ceramic tile flooring,Glazed tiles upto 7'0'' height.
CP Fittings: Jaguar or equivalent fittings.
Sanitary Ware: Hindware/Parryware or equivalent
Doors and Windows: Main Door of Teak wood frame with skin paneled shutters, All other Doors of Sal wood frame with termite resistant Shutters.
Windows & Ventilators: 3 Track UPVC windows with Safety Grills with provision for mosquito mesh
Electrical: Concealed electrical wiring of ISI make & provision of adequate light points. Television and Telephone point in living room and master bedroom with Intercom facility.
Lifts: Eight Passenger capacity of OTIS or equivalent brand.
Others features: 24hrs water supply from Borewell with sump and pump.
Car parking at Stilt level on ownership basis only.
AC Point, Cable TV connection, internet & intercom Provision.
Clubhouse with gymnasium, indoor games room, party area & multipurpose hall.
Well designed landscaped areas for recreation and children's play.
Following are the Highlights of the project
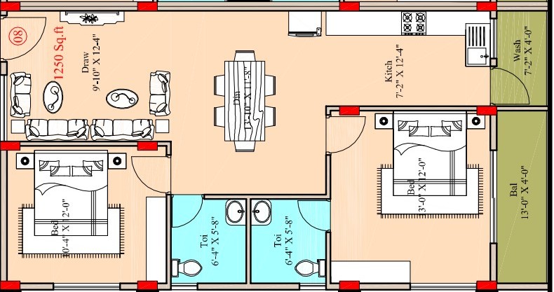
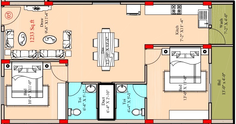
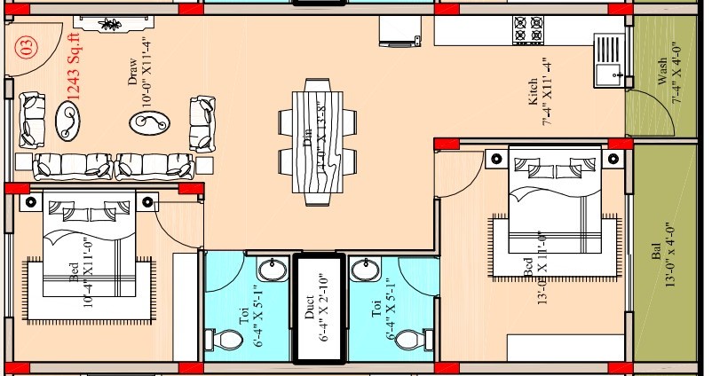
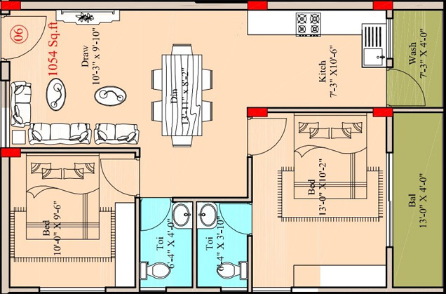
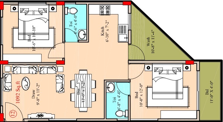
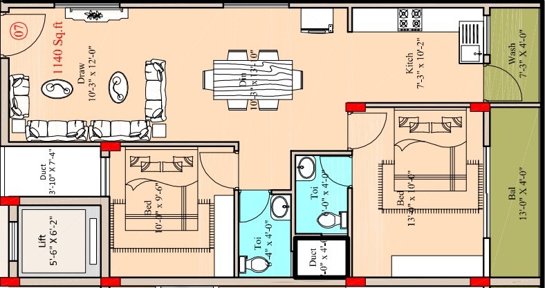
- 2BHK Size 1054 to 1250 Sq.ft
- 3BHK Size 1306 Sq.ft
- S+G+3 Floors = 48 Flats Only
- Gym, Childrens Play Area, Club House & Party Hall
- Walking Track
- Central 8 passengers Lift of OTIS Make
- Top Quality Flooring and Bathware
- Price Rs.40 Lakhs Onwards
- Direct Access to Hosur Road, Electronic City
- Direct Access to Sarjapur – Outer Ring Road
To simply say they were very good at their job would be the grossest of understatements. Their commitment, dedication and enthusiasm to what is at times a difficult task, was superb.
Sneha, Ananth Nagar
In a very difficult market, it took a lot of patience and persistence on your part, we very much appreciate all that you have done for us. You were always there and followed up on every detail and any queries we had during the process you were always helpful, professional and handled the situation with a smile. We would have no hesitation in recommending you to anyone considering buying their home.
Venkatesh with family
Your team made an impression on us with your expertise and knowledge of leasing and property management. We look forward to our relationship and enjoy the quality of professionalism that you provide us daily.
Chocka Nigalam - Jayanagar, Bangalore
I have known Raghvendra Infrastructures for over 10 years both personally and professionally and I have always enjoyed working with them. RI always meet their client's expectations in every transaction that he handles and I can always count on them to do what they says they are going to do!
Aslam - Whitefield